Affitto
Rif. OGE-101

Affitto Mansarda 155 m², Milano, località Brera - Moscova - Turati

  • Brera, via Solferino Stupenda Mansarda

    Lombardia Milano Brera - Moscova - Turati
    • 4locali
    • 3camere
    • 2bagni
    • 155
  • Prezzo

    € 2.800

Panoramica

Residenziale
Destinazione
Mansarda
Tipologia
4+4
Tipo Contratto
155 m²
Superficie
Disponibilità
Immediata
€ 250incluse di Acqua
Condominio mensile
€ 8.400
Deposito

Descrizione

MILANO – Brera – Mansarda di mq. 155 in palazzo d’epoca

Brera, Via Solferino, all’ interno di una casa d’epoca della fine dell’800, mansarda di 155 mq.

ristrutturata.

E’ situata al terzo piano: il caldo ambiente interno č illuminato da tre finestre a cappuccina e da numerosi velux ad apertura elettrica, i pavimenti sono in parquet di rovere e i bagni con doccia in mosaico di bisazza.

Ottima la divisione interna degli spazi: uno studio a destra dell’entrata, ampio soggiorno con sala da pranzo con doppia esposizione e cucina abitabile. La zona notte č composta da una camera da letto matrimoniale con bagno en suite e cabina armadio e da una seconda camera e secondo bagno. La mansarda viene affittata parzialmente arredata.

Il riscaldamento č autonomo, l’abitazione č provvista sia di un impianto di aria condizionata che un sistema di allarme.

Libera subito

No affitti transitori

Canone annuo € 33.600,00 + spese condominiali annue € 3.000,00 contratto 4+ 4 con cedolare secca persone fisiche

Garanzia : deposito 3 mesi



Descrizione

Condizioni Ristrutturato
Riscaldamento Termoautonomo
Piano Attico - piani edificio: 3
Cucina Abitabile
Arredato Parzialmente Arredato
Terrazzo No
Balcone No
Anno di Costruzione 1900
Ascensore
Allarme
Portineria
Climatizzato
Porta blindata
Cucina Abitabile
Sistema di allarme

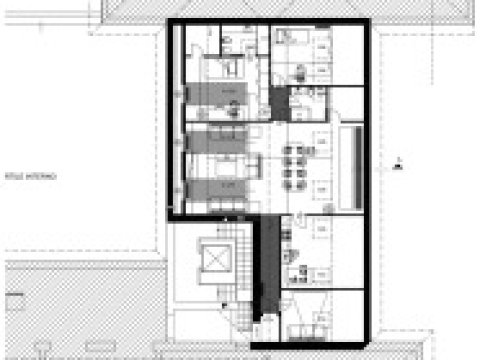
Planimetrie

Brera, via Solferino Stupenda Mansarda - 1

Mappa

Richiesta Informazioni

Inserire il testo antispam come visualizzato nell'immagine.

Scrivete la Vostra richiesta, vi risponderemo appena possibile.

Chat via WhatsApp