Affitto
Rif. TPB-476

Affitto Appartamenti 67 m² ottime condizioni, Milano, località Brera - Moscova - Turati

  • APPARTAMENTO IN LOCAZIONE IN VIA BORGONUOVO

    Lombardia Milano Brera - Moscova - Turati
    • 2locali
    • 1camere
    • 1bagni
    • 67
  • Prezzo

    € 3.000

Panoramica

Residenziale
Destinazione
Appartamenti
Tipologia
4+4
Tipo Contratto
67 m²
Superficie
Disponibilità
Non immediata: piu' di 2 mesi
€ 375incluse di Acqua e Riscaldamento
Condominio mensile

Descrizione

Nel Centro storico della città, cuore di Brera, nell'ambitissima Via Borgonuovo, lontano dalla movida notturna, proponiamo all'interno di un prestigioso palazzo d'epoca servito da portineria con orari 8-18 feriali ed 8-12 il sabato, completamente rinnovato in tutte le sue parti interne ed esterne, appartamento in locazione posto al terzo piano di 67 metri quadri, completamente arredato.

Grazie alla collocazione angolare, l'appartamento gode di affacci riservati e luminosità naturale.

Composto da un grande open space per ciò che riguarda la zona giorno, perfettamente studiato con arredi su misura, atti a sfruttare al meglio tutto il potenziale della casa, cromie tenui e moderne che si amalgamano perfettamente tra di loro, una cucina moderna completamente attrezzata, completa e con grande penisola, dall'altro lato la zona living, arredata con grande sofà in pelle, zona tv.

In corrispondenza della cucina e del living, si aprono attraverso due porte finestre, due balconi con affaccio esterno.

Un bagno con ampio box doccia e la camera da letto matrimoniale completano l' unità.

Rifinita con tutti i comfort moderni dell' abitare, con riscaldamento, raffrescamento ed acqua calda centralizzata, tutto incluso nelle spese condominiali annue con importo pari ad € 4.500,00.

Un'abitazione pronta e completa di tutti gli arredi, contratto a società.

Canone annuo € 36.000,00.

Disponibile dal 1° settembre 2023.

Allegati

Descrizione

Condizioni Ottime Condizioni
Riscaldamento Centralizzato
Giardino m2 No
Piano 3 - piani edificio: 4
Cucina A vista
Arredato Arredato
Terrazzo No
Balcone Si
Ascensore
Condizionatore Centralizzato
Portineria
Climatizzato
Porta blindata

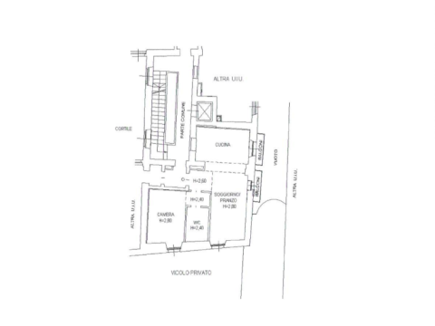
Planimetrie

APPARTAMENTO IN LOCAZIONE IN VIA BORGONUOVO - 1

Mappa

Richiesta Informazioni

Inserire il testo antispam come visualizzato nell'immagine.

Scrivete la Vostra richiesta, vi risponderemo appena possibile.

Chat via WhatsApp