Sale
Ref. TCCF-1313

Apartments for Sale 155 sqm., Milan, locality Canonica - Cenisio - Procaccini - Porta Volta

  • Beautiful renovated apartment with garage

    Lombardy Milan Canonica - Cenisio - Procaccini - Porta Volta
    • 4rooms
    • 3bedrooms
    • 3bathrooms
    • 155/0sqm
  • Price

    € 1.150.000

Overview

Residential
Destination
Apartments
Category
155 sqm
Area
0 sqm
Commercial Area
€ 700 included of Water and Heating
Monthly condo

Description

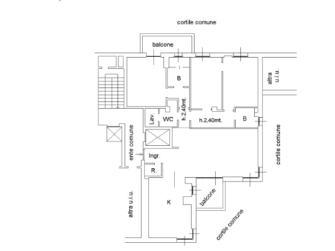
Cenisio/Caracciolo area. In via Caracciolo, inside an elegant building dating back to the early 1980s with a wonderful communal garden, concierge and very well-kept common areas, we offer for sale with exclusive assignment a magnificent 155 m2 apartment located on the fifth floor.
The apartment is developed with a triple exposure towards the south-east, east and north-west, which gives it great brightness throughout the day. Furthermore, the almost complete exposure to the condominium gardens and the upper floor guarantee pleasant tranquility, especially in the sleeping area.
The result of a recent renovation carried out with excellent finishes and good taste which make it a solution ready to be immediately inhabited, the property consists of the living area of ​​a large living room which leads to the small loggia terrace. A second access to the terrace is found in the large eat-in kitchen, complete with all appliances and equipped with both a table and a peninsula. The living area ends with a comfortable and practical closet and a service bathroom that serves both this area and the sleeping area. Moving on to the sleeping area we find three bedrooms, one of which is the master room, with an elegant en suite bathroom and a balcony overlooking the internal courtyard. The other two bedrooms, also overlooking the internal courtyard, are served by another bathroom.
The property is completed by a single garage and a cellar, both included in the sale price.
Asking price: €1,150,000.00

Attachments

Description

Condictions Renovated
Heating Central
Garden Sqm Shared
Floor 5 - plans building: 8
Kitchen Habitable
Furnished Partially Furnished
Terrace Yes
Balcony Yes
Year Built 1980
Lift
Air conditioner Independent
Concierge
Air-Conditioned
Security door
Kitchen

Floor Plans

Beautiful renovated apartment with garage - 1

Map

Request Information

Enter the text as shown in the image.

Write your request, we will reply as soon as possible.

Chat via WhatsApp