Rent
Ref. GHS-591

Penthouse for Rent 170 sqm. excellent condition, Milan, locality Majno - Piave - Tricolore

  • Spacious two-story attic with terraces on Viale Premuda

    Lombardy Milan Majno - Piave - Tricolore
    • 4rooms
    • 3bedrooms
    • 3bathrooms
    • 170sqm
  • Price

    € 5.500

Overview

Residential
Destination
Penthouse
Category
4+4
Contract Type
170 sqm
Area
Availability
Not Immediate: more than 2 months
€ 200included of Water
Monthly condo
€ 16.500
Deposit

Description

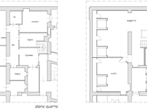
In an elegant building on Viale Premuda, we offer for rent a spacious attic apartment of approximately 200 square meters (170 square meters of floor space) on two levels, on the 4th and 5th floors, served by an elevator and a full-time concierge.

Layout:
Fourth Floor - Sleeping Area:
Entrance, hallway, 3 bedrooms, 3 bathrooms, closet

Fifth Floor - Living Area:
Large living room, eat-in kitchen, 3 sunken roof terraces

Main Features:
Monthly rent: €5,500.00 (€66,000.00 per year)
Condominium fees: €200.00/month subject to adjustment
- Independent heating
- Air conditioning in all rooms and the living room
- Parking space included in the courtyard

Finishes and Equipment
- Apartment delivered renovated and complete with kitchen
- Polished and polished parquet floors, new floors
- Completely renovated bathrooms
- New windows and shutters

Availability: Approximately from January 1, 2026, subject to the property's release and interior renovations

Attachments

Description

Condictions Excellent Condition
Heating Climate control
Garden Sqm No
Floor Multipiano - plans building: 5
Kitchen Habitable
Furnished Partially Furnished
Terrace Yes
Balcony No
Year Built 1930
Lift
Air conditioner Independent
Concierge
Air-Conditioned
Security door
Kitchen

Floor Plans

Spacious two-story attic with terraces on Viale Premuda - 1

Map

Request Information

Enter the text as shown in the image.

Write your request, we will reply as soon as possible.

Chat via WhatsApp