Sale
Ref. LFV-570

Apartments for Sale 200 sqm., Milan, locality Quadronno - Palestro - Guastalla

  • Two level apartment with 3 parking spaces

    Lombardy Milan Quadronno - Palestro - Guastalla
    • 4rooms
    • 3bedrooms
    • 3bathrooms
    • 200sqm
  • Price

    € 1.040.000

Overview

Residential
Destination
Apartments
Category
200 sqm
Area
€ 400 included of Water and Heating
Monthly condo

Description

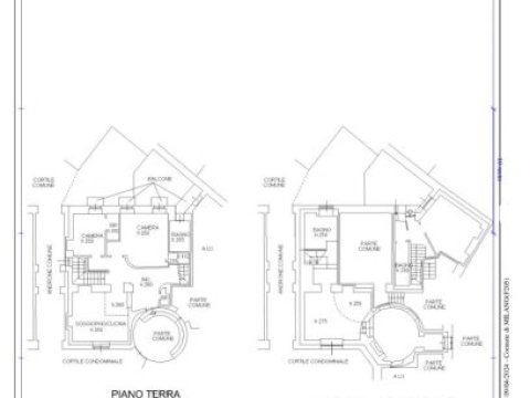
In Via Podgora, just 100 meters from the court and the Milan Polyclinic area, we offer a spacious 200m2 apartment, complete with 3 private parking spaces, 2 of which are covered, with direct access to the property and 3 separate entrances.

Located on the mezzanine floor, the apartment boasts a bright, windowed basement, offering you a serene and peaceful environment, overlooking an enchanting, suggestively planted courtyard. The property is offered at a decidedly competitive price compared to other offers in the area.

The large entrance introduces a welcoming living room with kitchen, a master bedroom with private bathroom and a second smaller bedroom, both internally facing to ensure privacy and tranquility.

Two stairs on the sides lead to the basement: on one side you will find a large windowed room with a 2.75 m high ceiling and a private bathroom. On the other, there is access to a second studio also with bathroom, which communicates with a parking area of ​​approximately 41 m2, capable of comfortably accommodating up to 3 cars.

Sales price: €1,040,000.00, including 3 parking spaces for a total surface area of ​​41 m2. Don't miss the chance to visit this extraordinary opportunity!

Attachments

Description

Condictions Habitable
Heating Central
Garden Sqm Shared
Floor Rialzato - plans building: 5
Kitchen At sight
Furnished Not Furnished
Terrace No
Balcony Yes
Year Built 1930
Lift
Air conditioner Assente
Concierge
Security door

Floor Plans

Two level apartment with 3 parking spaces - 1
Two level apartment with 3 parking spaces - 2

Map

Request Information

Enter the text as shown in the image.

Write your request, we will reply as soon as possible.

Chat via WhatsApp